Please complete the form below and a member of staff will be in touch shortly.
KEY FEATURES
• 10-Year New Build Guarantee
• Double-glazed throughout
• Luxury fitted kitchen with integrated quality appliances
• Gas central heating and energy-saving solar panels
• Contemporary fitted bathrooms
• Exclusive village location combining community charm with countryside living
• Electric car charging port
• Detached single garage
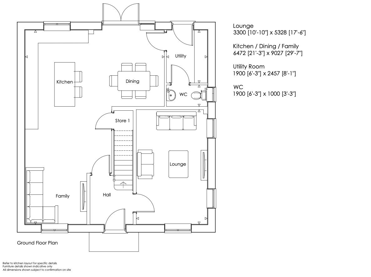
MEASUREMENTS
Ground Floor
Lounge 3300 (10’-10”) x 5328 (17’-6”)
Kitchen / Dining / Famil;y 6472 (21’-3”) x 9027 (29’-7”)
Utility Room 1900 (6’-3”) x 2457 (8’-1”)
W/C 1900 (6’-3”) x 1000 (3’-3”)
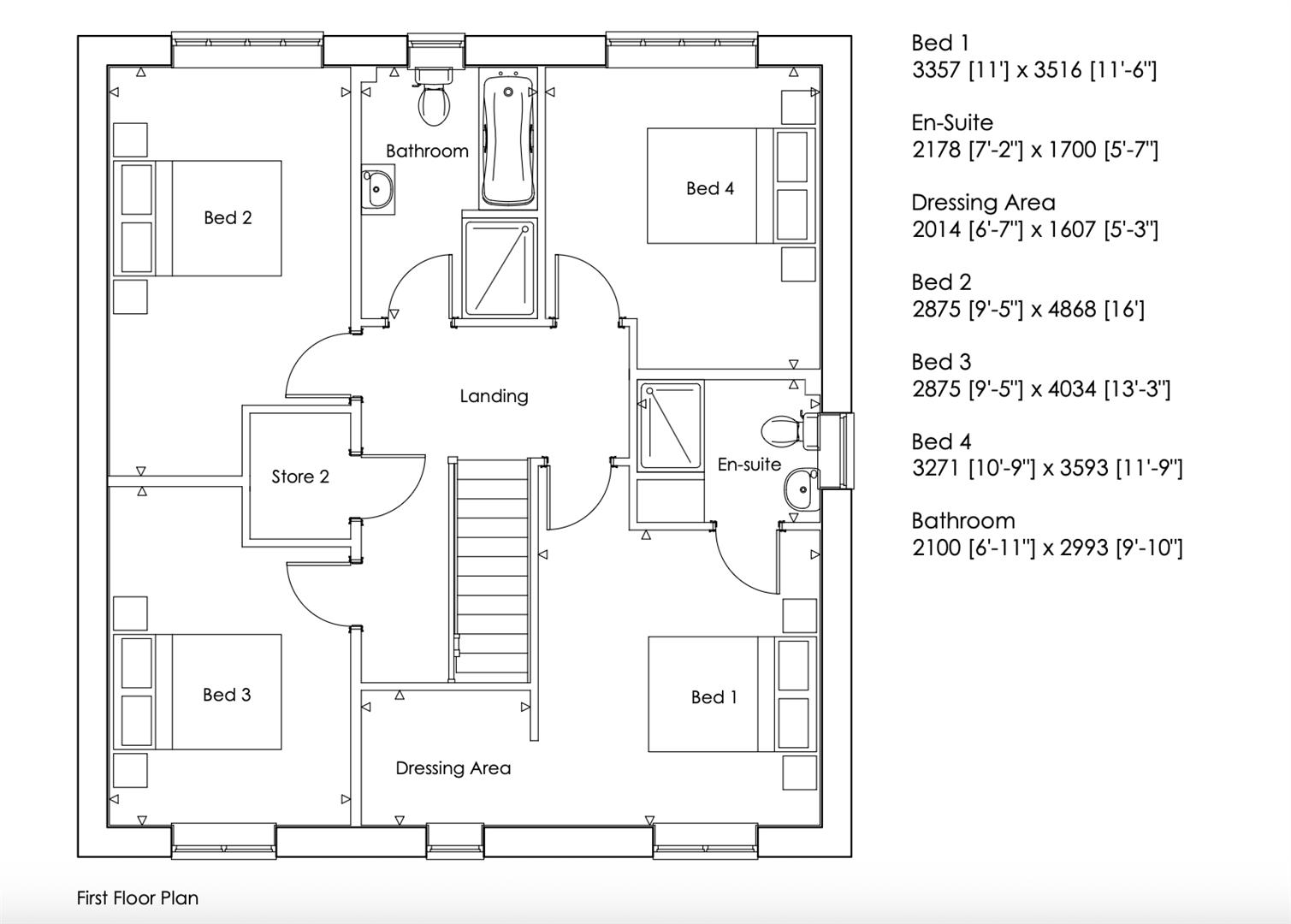
First Floor
Bedroom 1 3357 (11’) x 3516 (11’-6”)
En-Suite 2178 (7’-2”) x 1700 (5’-7”)
Dressing Area 2014 (6’-7”) x 1607 (5’-3”)
Bedroom 2 2875 (9’-5”) x 4868 (16’)
Bedroom 3 2875 (9’-5”) x 4034 (13’-3”)
Bedroom 4 3271 (10’-9”) x 3593 (11’-9”)
Bathroom 2100 (6’-11”) x 2993 (9’-10”)