Mill Road, Cheadle, Stoke-On-Trent
£145,000
Brief Overview
Property Summary
Abode are delighted to present for sale this charming two bedroom end terraced home, complete with a low maintenance rear garden.
Ideally situated close to Cheadle Town Centre, the property benefits from easy access to a wide range of shops, schools, and local amenities.
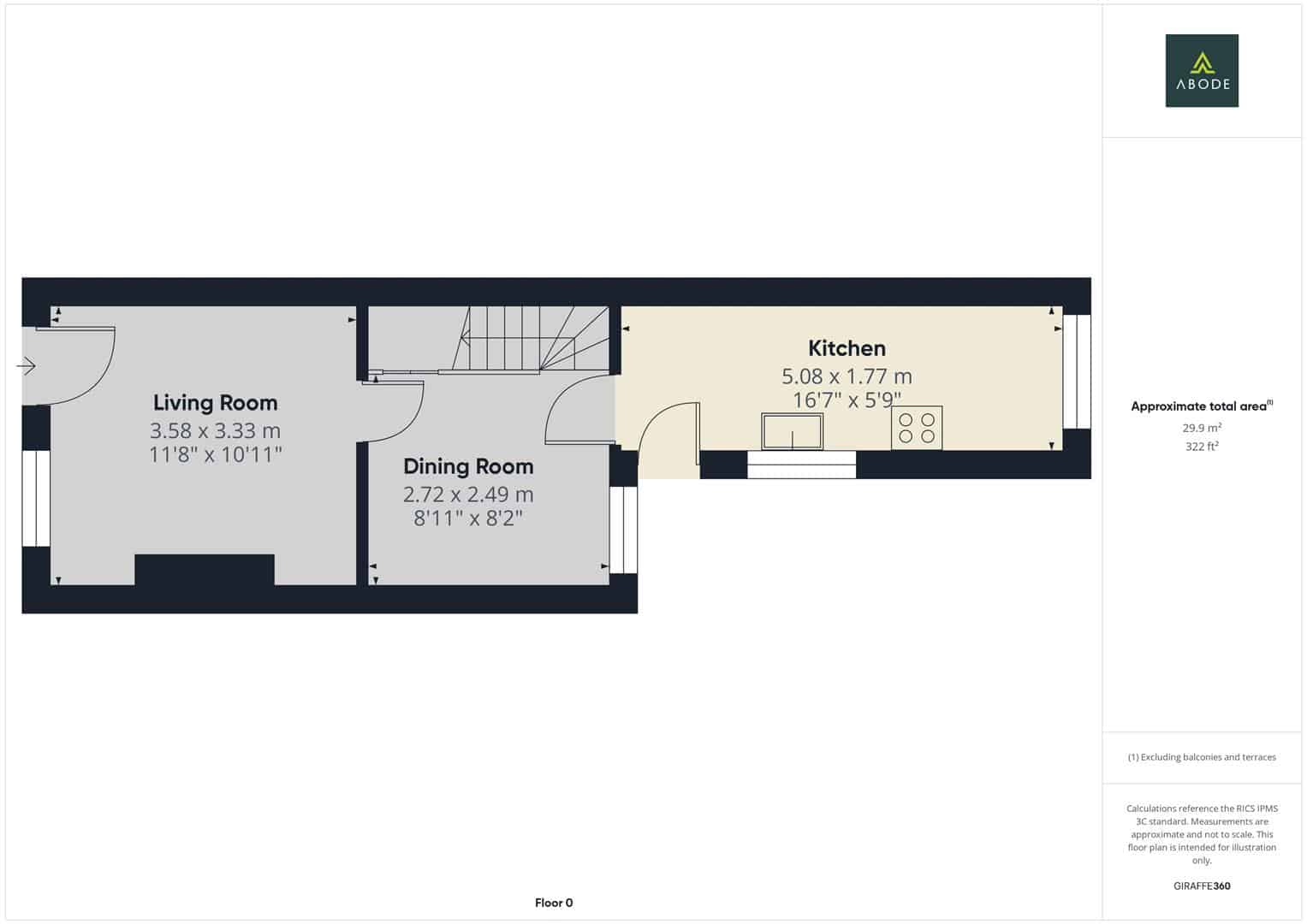
Well maintained throughout, the accommodation comprises a welcoming living room, a separate dining room, and a well proportioned kitchen to the ground floor. To the first floor, there are two bedrooms alongside a family bathroom.
The rear garden offers a versatile summerhouse, perfect for use as a home office, studio, or additional storage. Further features of the property include UPVC double glazing and gas central heating throughout.
This lovely home is perfect for first time buyers or those seeking to downsize. Early viewing is highly recommended.
Ideally situated close to Cheadle Town Centre, the property benefits from easy access to a wide range of shops, schools, and local amenities.
Well maintained throughout, the accommodation comprises a welcoming living room, a separate dining room, and a well proportioned kitchen to the ground floor. To the first floor, there are two bedrooms alongside a family bathroom.
The rear garden offers a versatile summerhouse, perfect for use as a home office, studio, or additional storage. Further features of the property include UPVC double glazing and gas central heating throughout.
This lovely home is perfect for first time buyers or those seeking to downsize. Early viewing is highly recommended.
Full Details
Living Room
UPVC double glazed window to the front elevation and door leading in from the front, central heating radiator, gas feature fireplace.
Dining Room
UPVC double glazed window to the rear…


