House for Sale in Thrushton, Doles Lane, Findern DE65 6AX : Abode Estate Agents

Thrushton, Doles Lane, Findern DE65 6AX

Thrushton, Doles Lane, Findern DE65 6AX

£435,000
House
3
2
The Thrushton is a superbly designed detached home that blends space, style, and practicality, making it an ideal choice for family living. Set within an exclusive village development, it offers a thoughtful layout across two floors with generous proportions throughout.

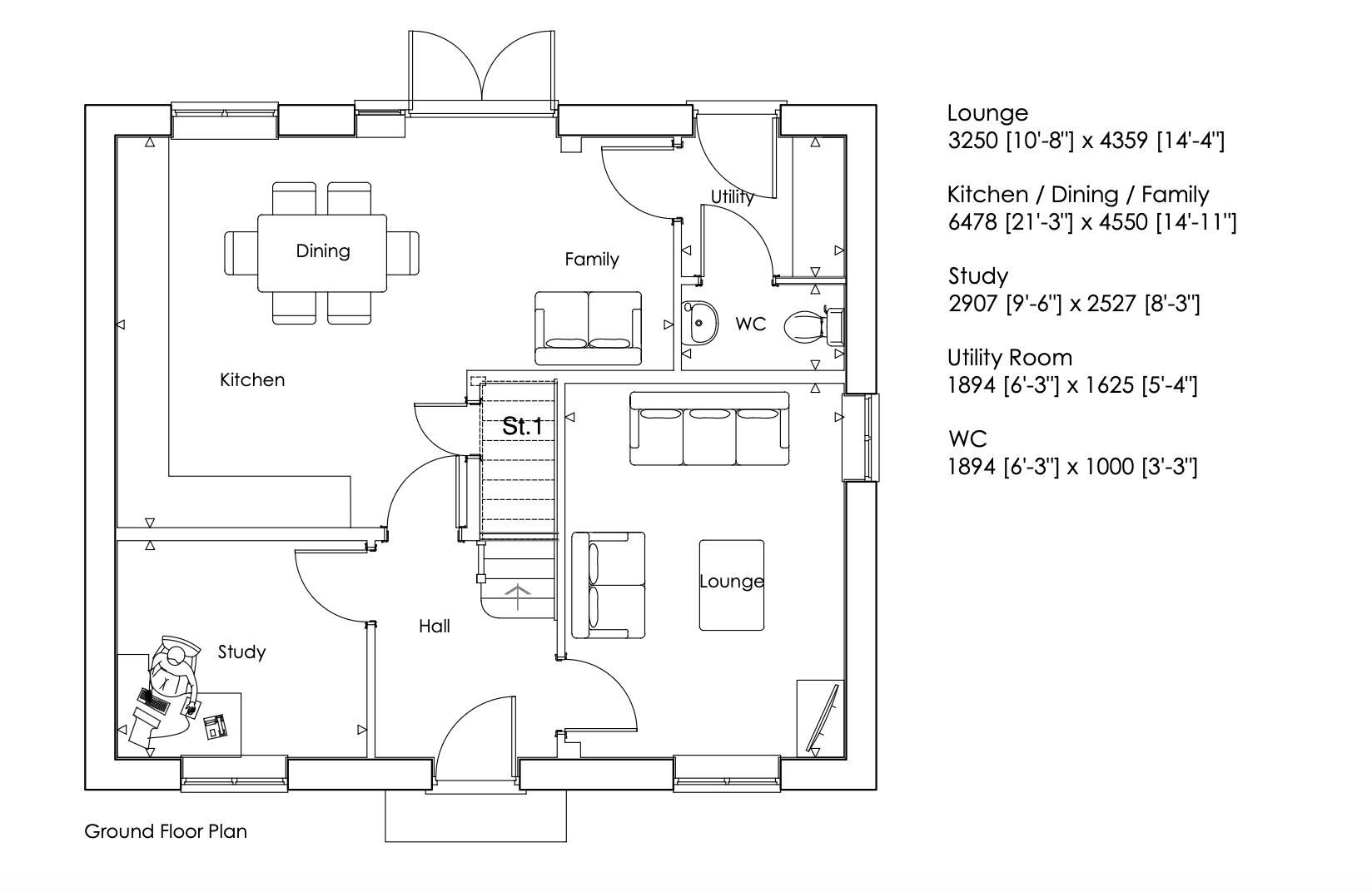
On the ground floor, the welcoming hallway leads to a front-facing study, a spacious lounge, and a convenient guest W.C. To the rear, the highlight of the home is the impressive open-plan kitchen, dining, and family space with French doors opening to the garden, complemented by a useful utility room.

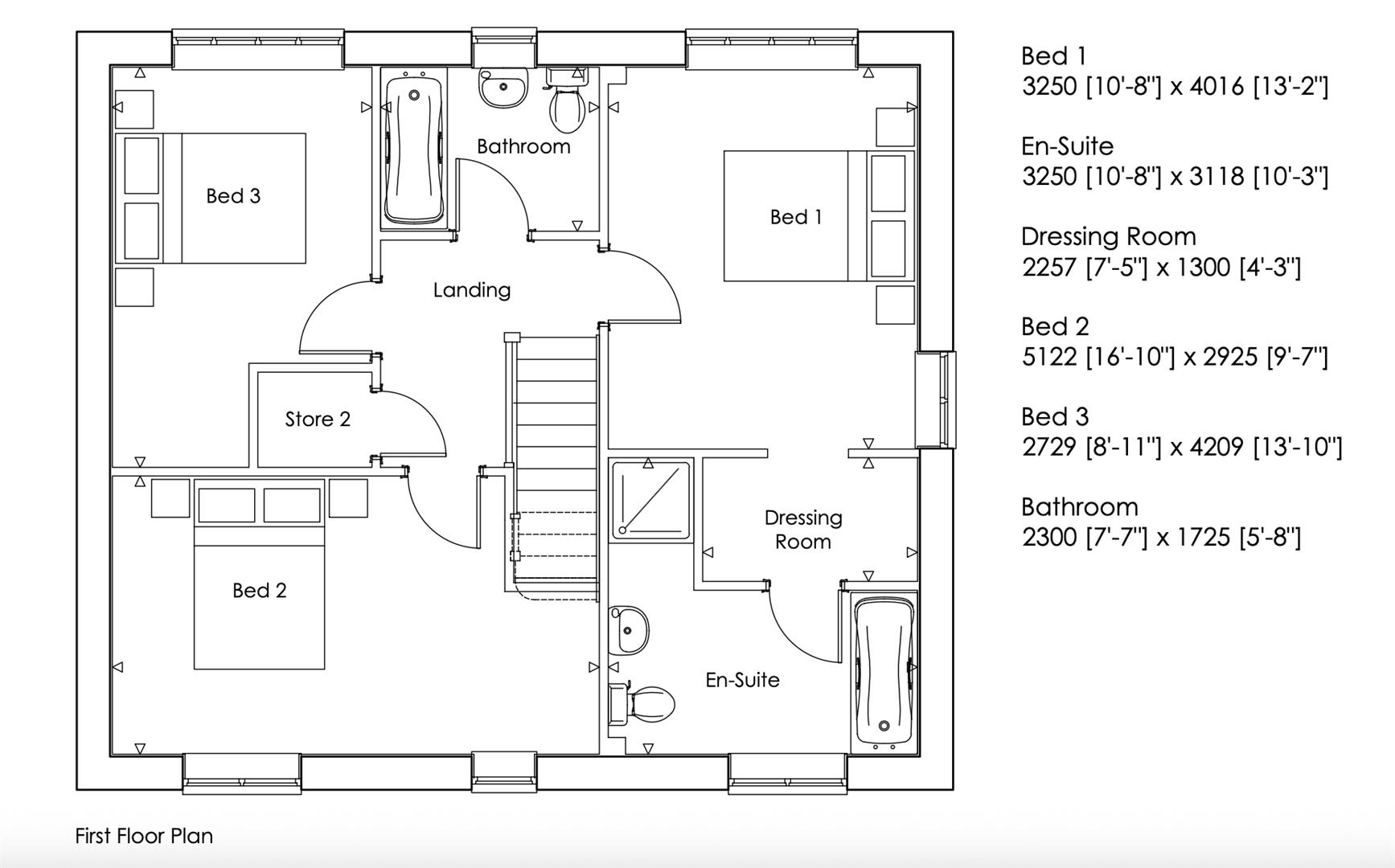
The first floor offers three well-proportioned bedrooms and a contemporary family
bathroom. The principal bedroom benefits from a private en-suite and dressing room.
  • Make Enquiry
  • Floorplan
  • Floorplan
  • View Brochure
  • Add To Shortlist
  • Map View
  • Make an Offer

Description

KEY FEATURES
• 10-Year New Build Guarantee
• Double-glazed throughout
• Luxury fitted kitchen with integrated quality appliances
• Gas central heating and energy-saving solar panels
• Contemporary fitted bathrooms
• Exclusive village location combining community charm with countryside living
• Detached single garage
• Electric car charging point

MEASUREMENTS
Lounge
3250 [10'-8"] x 4359 [14'-4"]

Kitchen / Dining / Family
6478 [21'-3"] x 4550 [14'-11"]

Study
2907 [9'-6"] x 2527 [8'-3"]

Utility Room
1894 [6'-3"] x 1625 [5'-4"]

WC
1894 [6'-3"] x 1000 [3'-3"]

Bed 1
3250 [10'-8"] x 4016 [13'-2"]

En-Suite
3250 [10'-8"] x 3118 [10'-3"]

Dressing Room
2257 [7'-5"] x 1300 [4'-3"]

Bed 2
5122 [16'-10"] x 2925 [9'-7"]

Bed 3
2729 [8'-11"] x 4209 [13'-10"]

Bathroom
2300 [7'-7"] x 1725 [5'-8"]

+ Read More