House for Sale in Aldersley, Doles Lane, Findern, DE65 6AX : Abode Estate Agents

Aldersley, Doles Lane, Findern, DE65 6AX

Aldersley, Doles Lane, Findern, DE65 6AX

£679,950
House
5
3
IMPRESSIVE FIVE BEDROOM DETACHED HOME IN A SOUGHT AFTER VILLAGE SETTING. INCENTIVES INCLUDE UPGRADED KITCHEN, DEKTON WORK SURFACES AND PREMIUM LVT FLOORING TO ALL DOWNSTAIRS (except lounge)

This stunning double-fronted detached residence is set over three floors, offering beautifully balanced accommodation that is perfect for modern family living.

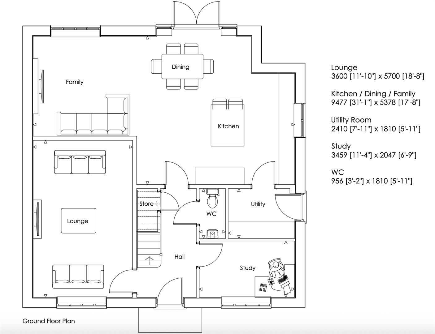
The ground floor welcomes you with a spacious hallway, leading to a comfortable lounge,
a stylish family dining kitchen with adjoining utility, a private study, and a convenient guest W.C.

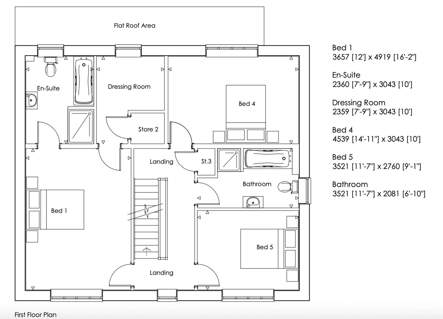
To the first floor are three generously sized double bedrooms, including a luxurious principal suite with en-suite and dressing room, together with a contemporary family bathroom.

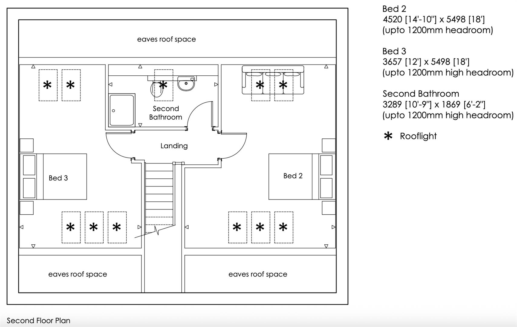
The top floor provides two further double bedrooms and an additional bathroom – an ideal space for teenagers, guests, or extended family.

This is a home that combines space, style, and sustainability, making it an exceptional
choice for family buyers.

Description

KEY HIGHLIGHTS
• Double-glazed throughout
• Luxury fitted kitchen with quality appliances with central island unit and Dekton work surface
• Gas central heating and energy-saving solar panels
• Stylish fitted bathrooms
• Prime village location offering a blend of community and countryside living
• Detached double garage
Electric car charging point

MEASUREMENTS
Lounge
3600 [11’-10”] x 5700 [18’-8”]

Kitchen / Dining / Family
9477 [31’-1”] x 5378 [17’-8”]

Utility Room
2410 [7’-11”] x 1810 [5’-11”]

Study
3459 [11’-4”] x 2047 [6’-9”]

WC
956 [3’-2”] x 1810 [5’-11”]

Bed 1
3657 [12’] x 4919 [16’-2”]

En-suite
2360 [7’-9”] x 3043 [10’]

Dressing Room
2359 [7’-9”] x 3043 [10’]

Bed 4
4539 [14’-11”] x 3043 [10’]

Bed 5
3521 [11’-7”] x 2760 [9’-1”]

Bathroom
3521 [11’-7”] x 2081 [6’-10”]

Bed 2
4520 [14’-10”] x 5498 [18’]
(up to 1200mm headroom)

Bed 3
3657 [12’] x 5498 [18’]
(up to 1200mm headroom)

Second Bathroom
3289 [10’-9”] x 1869 [6’-2”]
(up to 1200mm headroom)

+ Read More